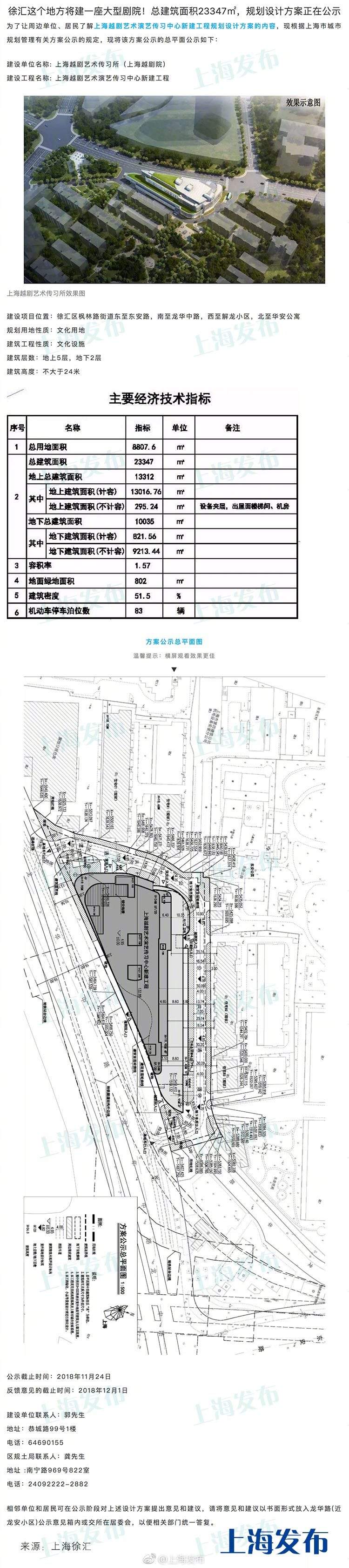
徐汇这个地方将建一座大型剧院!规划设计方案正在公示→ 周到君 2018-11-26 来源:周到上海 徐汇要建上海越剧院啦! “上海徐汇发布”说:建设项目位于徐汇区枫林路街道,东至东安路,南至龙华中路,西至解龙小区,北至华安公寓;总建筑面积23347㎡。公示截止时间:11月24日;反馈意见的截止时间:2018年12月1日。 详情↓ 来源:周到上海 作者:周到君 赞一个 (0)